72м²

Современный модульный дом 100% готовности Производство: г. Новокузнецк

Изготовление 15-30 дней

Гарантия на конструкцию до 10 лет

CUBBER

Проект HOUSE 43

Общая площадь

Доступна ипотека и кредит

Вы даете согласие на передачу и обработку персональных данных

Планировка
Фасады

3 140 000 р.

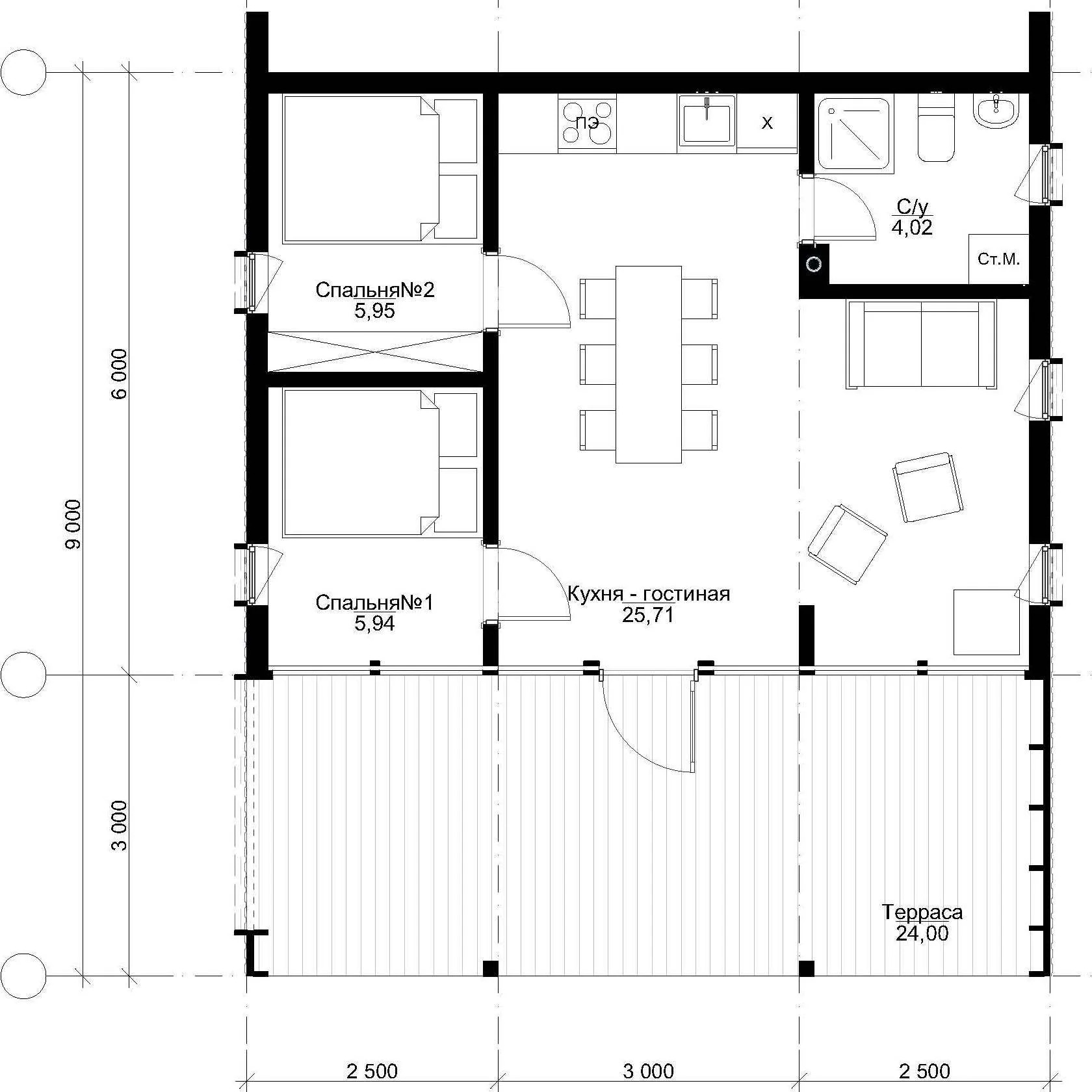
Площадь застройки - 72 м²
Габариты дома (ВхШхД) - 3,2х8х9
Полезная площадь дома - 43 м²
Площадь крытой террасы - 24 м²
Высота потолков - 1.85 - 3

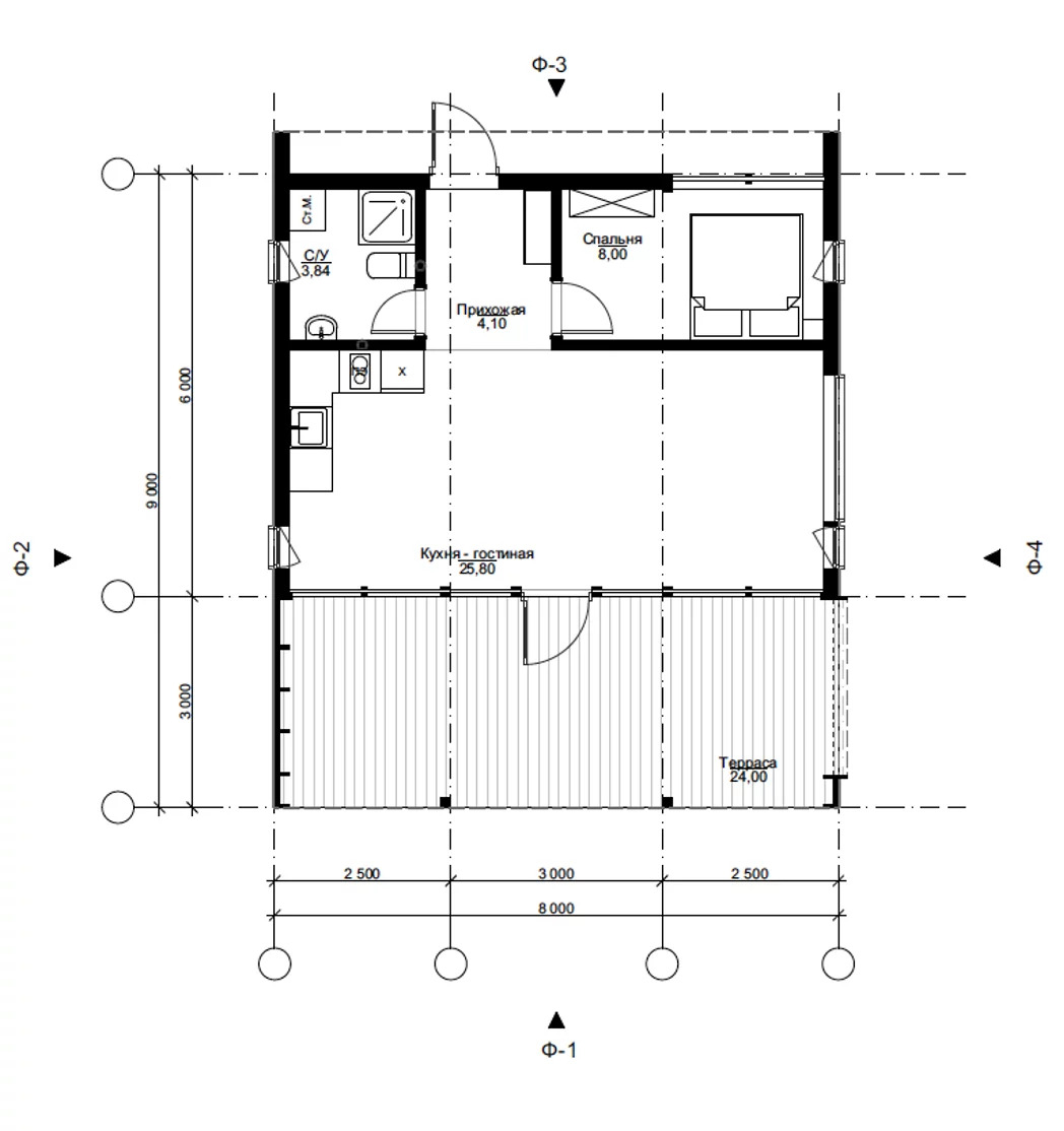
Две спальни с прихожей

2 950 000 р.

Площадь застройки - 72 м²
Габариты дома (ВхШхД) - 3,2х8х9
Полезная площадь дома - 43 м²
Площадь крытой террасы - 24 м²
Высота потолков - 1.85 - 3

Одна спальня с прихожей

Хотите изменить планировку?

Это совсем просто! Назначьте встречу с одним из наших архитекторов и на основании ваших идей он создаст индивидуальные планировки.

О проекте
House 43 - трехмодульный дом в котором есть спальная комната, гостиная, кухня, санузел и веранда. Площадь дома небольшая – всего 43 м2, однако, для небольшой семьи – этого достаточно, чтобы жить с комфортом и наслаждаться природой и свежим воздухом.

Понравился дом? Расскажем
о нём подробнее

Если вы хотите купить дом или получить консультацию, отправьте сообщение и мы свяжемся с вами как можно скорее

О технологии производства
модульных домов

Суть модульного домостроения в том, что крупные конструктивные элементы/модули собирают отдельно, на специализированной производственной базы, до готовности 70-95%. Затем их привозят на ваш участок и компонуют в желаемом виде.

Основные этапы стройки:
  1. Готовится проект, исследуется участок, выбирается фундамент. Для небольших домов оптимальны недорогие практичные фундаменты, например винтовые сваи. Монтаж такого основания обычно занимает не более 2-х дней.
  2. В заводских условиях готовят материал. Древесина сушится, калибруется, распиливается, обрабатывается защитными составами. Делают силовой каркас, внутри него закладывается утеплитель (как в традиционном каркасном домостроении). «Сэндвич» содержит пароизолирующие и ветрозащитные слои, обшивочные плиты с двух сторон. Модули собирают по типовым либо индивидуальным проектам.
  3. После этапа фабричного изготовления модули доставляют на место возведения и собирают подобно крупногабаритному конструктору. К финишной отделке и подключению инженерных коммуникаций можно приступать сразу.

Конструктив домов

Пол

Стены

Кровля

Есть вопрос?
Дадим развернутый ответ

Проконсультируем и расскажем о технологии

Вы даете согласие на передачу и обработку персональных данных

Галерея дома

Оформите заявку или задайте вопрос

Если вы хотите купить дом или получить консультацию, отправьте сообщение и мы свяжемся с вами как можно скорее

Другие проекты